An aluminum cable spacer is a mechanical device used to maintain proper spacing between conductors in overhead power transmission and distribution lines. It ensures the electrical, mechanical, and thermal stability of the systems. Cable spacers prevent conductors from clashing during wind, vibration, or short-circuit conditions. By keeping the conductors aligned, the spacers reduce oscillations caused by wind, which can lead to fatigue. Aluminum cable spacers ensure uniform spacing in bundled conductors to improve electrical field distribution and reduce corona discharge. The spacers provide structural stability and maintain consistent phase separation and alignment of the transmission line. Aluminum cable spacers are from high-strength aluminum alloy that provides corrosion resistance and electrical conductivity.
The working principle of an aluminum cable spacer
The working of the cable spacer depends on mechanical separation, vibration damping, and local distribution within bundled conductors. It ensures that the conductors remain spaced and stable under various environmental and electrical conditions. The aluminum cable spacer maintains uniform spacing between sub-conductors in a bundle. Each spacer grips the conductor using clamping arms to ensure they stay in fixed relative positions. The spacer absorbs and dissipates the kinetic energy of the vibrations through damping elements. These include rubber fitted between the spacer body and the conductors. The load distribution prevents excessive strain on individual conductors or clamps. By maintaining steady distances between sub-conductors, the spacer ensures a uniform electric field around the bundle. Aluminum cable spacers ensure a balanced mechanical system that maintains conductor separation, controls vibration, and ensures electrical stability. It does this by distributing dynamic and static forces within bundled conductors.
Aluminum Cable Spacer
Aluminum Cable Spacers are precision-engineered components designed for overhead power line construction, providing reliable conductor spacing, mechanical stability, and vibration control in high-voltage transmission and distribution networks. Manufactured from high-strength aluminum alloy, these spacers ensure durable, corrosion-resistant performance while maintaining optimal electrical efficiency and minimizing conductor fatigue. Ideal for bundled conductors, long-span lines, and EHV/UHV applications, aluminum cable spacers enhance grid reliability and reduce maintenance requirements.
Key Features:
- Maintains uniform spacing for single or bundled conductors
- Reduces aeolian vibration and galloping with integrated damping
- High mechanical strength to withstand tension and environmental loads
- Lightweight and corrosion-resistant aluminum construction
- Compatible with twin, triple, and quad bundles
- Suitable for EHV and UHV transmission lines
- Optional insulating inserts for electrical isolation
Significance of the aluminum cable spacers in transmission and distribution networks
The aluminum cable spacer ensures the safety, efficiency, and reliability of overhead distribution and transmission networks. It enhances the mechanical stability and electrical performance of high-voltage power lines. The spacer keeps the conductors spaced to maintain the required distance between sub-conductors. This prevents conductor contact that could cause electrical faults, short circuits, or damage to the transmission infrastructure. Aluminum cable spacers ensure a uniform electric field around the conductors. Improved electrical performance contributes to higher transmission efficiency and lower power losses across long distances. Cable spacers have damping elements that absorb and dissipate vibration energy and protect conductors from fatigue and premature failure. By maintaining spacing and mechanical strength, the cable spacer reduces the risk of outages and electrical hazards. Aluminum cable spacers support the transition toward smart grids and renewable integration. They do so by supporting grid modernization and expansion.
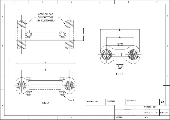
Components of the aluminum cable spacers
The cable spacer consists of several components working together to maintain conductor spacing, control vibration, and ensure mechanical stability. These components serve a specific purpose to support mechanical integrity and electrical reliability under environmental conditions. These key components include:

- Spacer body—the spacer body forms the core structure of the aluminum cable spacer. It is from high-strength aluminum alloy for corrosion resistance and mechanical durability. The body acts as the central frame connecting and supporting all the conductors in a bundle.
- Clamping arms—these clamps hold the conductor in place without causing mechanical damage. It consists of hinged or bolted clamps to allow for easy installation and maintenance.
- Damping elements—the cable spacers have vibration-absorbing components placed between the clamp and the conductor. These components dissipate energy from wind-induced vibrations and prevent conductor fatigue.
- Connecting bolts, nuts, and fasteners—these components secure the entire spacer assembly and maintain tight mechanical connections. The fasteners hold the clamps and body together to allow for easy installation and field maintenance.
- Spacer arms—these are the extensions that connect the clamps to the central body. They maintain the layout of conductors to keep the geometry of the bundle stable.
- Vibration dampers—modern aluminum spacers integrate vibration damping systems into their structure. The design includes small arms or weighted components that oscillate to conductor movement. This is crucial to reduce amplitude and resonance effects.
Types of aluminum cable spacers
Rigid aluminum spacers

These spacers have a fixed, solid aluminum frame with conductor clamps attached to the main body. They maintain constant spacing between conductors within a bundle to ensure uniform phase separation. These cable spacers function in areas with low wind vibration and short spans.
Spacer dampers

These combine the functions of a spacer and a vibration damper in one unit. It has elastomeric joints or damping rods that allow controlled movement between the conductors. These spacers are ideal for high-voltage and extra-high-voltage transmission lines exposed to strong winds.
Mid-span spacers

The spacers maintain bundle geometry and prevent conductor sagging caused by weight or wind. They combine rigid and flexible features to balance stability and motion control. These spacers are ideal in extra-high-voltage (EHV) and ultra-high-voltage(UHV) systems for extra support to maintain alignment.
Interphase spacers

Interphase spacers maintain distance between conductors of different phases rather than within a single bundle. It connects adjacent phase conductors with an insulated or composite link. They work in compact line configurations or low-clearance corridors where phase separation is minimal.
Subspan spacers

These spacers install within a span between two spacer dampers to maintain smaller segment spacing. It enhances mechanical stability and reduces sub-conductor motion within each segment. These are ideal in long spans and bundle configurations with three or more conductors.
Technical specifications for the bundled cable spacer
The technical specifications of aluminum cable spacers define their mechanical strength, electrical performance, material properties, and dimensional parameters. The specifications ensure safe and efficient operation in overhead transmission and distribution networks. These specifications vary based on voltage level, conductor type, and environmental conditions. Here are the key technical specifications for the aluminum cable spacer.

- Material composition—the body material of the spacer consists of high-strength aluminum alloy for excellent corrosion resistance, lightweight design, and mechanical durability. The bolts and fasteners used are from stainless steel or hot-dip galvanized steel. These materials ensures superior tensile strength and anti-corrosion performance.
- Conductor accommodation range—the spacers can fit specific conductor diameters ranging from 20 mm to 40 mm. This depends on the voltage and line design. The clamp design ensures a firm grip without damaging the conductor surface. This is crucial to maintaining optimal contact pressure.
- Mechanical strength—the spacers have ultimate tensile strength that depends on spacer size and application. It is able to withstand vibration cycles without fatigue failure.
- Vibration and damping performance—the spacers are tuned to counteract aeolian vibration frequencies. The spacer dampers are tested to dissipate 70-90% of vibration energy to reduce conductor oscillation amplitude.
- Electrical performance—the corona onset voltage is above 250 kV depending on conductor size and bundle spacing. Their electrical resistance across conductive components ensures minimal heat buildup and less induced currents.
- Design and standards compliance—aluminum cable spacers are manufactured and tested according to recognized industry standards. These include IEC, IEEE, ASTM, and ISO standards.
- Environmental and durability ratings—the aluminum cable spacers are corrosion resistant, UV resistant, and have wind load endurance.
Applications of conductor spacers in power networks
Aluminum cable spacers maintain the mechanical integrity, electrical efficiency, and safety of overhead transmission and distribution systems. They are mostly used in high-voltage and extra-high-voltage lines to ensure reliable power flow. It also protects conductors from physical and electrical stress. Their applications in power networks include:

- Bundled conductor systems—subconductors bundle together in EHV and UHV transmission lines to form one phase. This is crucial to reduce corona discharge and increase power-carrying capacity. Aluminum cable spacers ensure equal current distribution, reduce electrical losses, and improve line efficiency and voltage regulation.
- High-voltage transmission lines—transmission lines above 132 kV need mechanical stability and electrical insulation. The cable spacers support and align conductors between towers to ensure consistent phase separation.
- Vibration control and line stabilization—spacer dampers function along the span to absorb and dissipate vibration energy. They reduce mechanical wear, extend conductor lifespan, and reduce maintenance frequency.
- Long-span transmission corridors—cable spacers maintain conductor alignment and prevent twisting under heavy loads. They provide mechanical balance to keep bundle geometry intact. This helps ensure the safety and reliability of power delivery.
- Interphase spacing in compact lines—aluminum cable spacers maintain safe clearance between phase conductors to prevent electrical arcing. This supports urban grid expansion and modernization.
- Renewable energy integration lines—renewable energy transmission systems connecting solar farms, wind parks, and BESS use EHV lines to send power. Aluminum cable spacers help stabilize bundled conductors that carry variable loads and fluctuating currents in renewable integration.
Best practices for aluminum cable spacers in power networks

The aluminum cable spacers ensure that the components deliver performance, safety, and longevity in transmission and distribution systems. Following proper selection, installation, and maintenance is crucial for maintaining mechanical integrity, reducing vibration, and preventing electrical faults in overhead lines. It is crucial to ensure proper conductor compatibility to ensure the spacer’s conductor clamping range, load rating, and spacing distance meet specifications of the conductor type. After careful installation, it is essential to perform routine maintenance to detect wear, corrosion, or fatigue early. Adhering to these practices helps extend the lifespan of conductors, improve grid stability, and reduce maintenance costs. This ensures safe and efficient power transmission across all voltage levels.


